loading
| Estado de Disponibilidad: | |
|---|---|
| Cantidad: | |
Bul1418
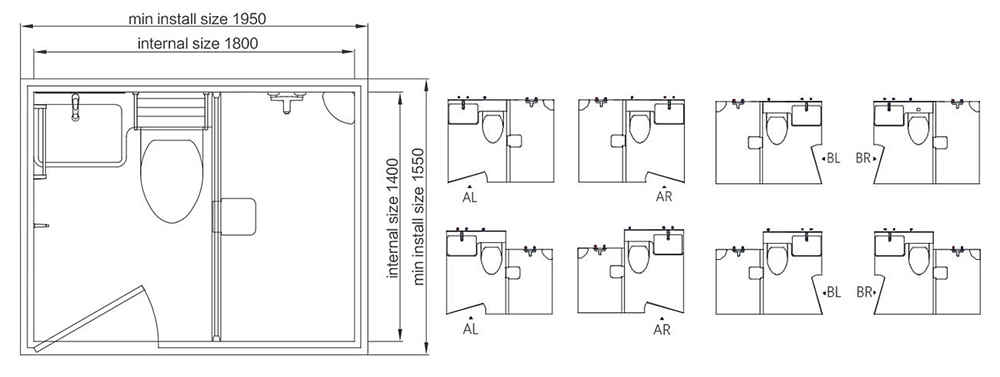
Dimensions | Interno | Externo |
Ancho | 1400 mm | 1550 mm |
Longitud | 1800 mm | 1950 mm |
Altura | 2000 mm/2200 mm | 2500 mm/2650 mm |
Disponible | 2.52㎡ | |
Peso | ≤250 kg | |
| Campo de aplicación | Hotel, apartamento, bienes raíces, casa modular, hospital, etc. | |
Información de envío | 40 conjuntos Empacado plano/40 HC | |


| Bul1418 | ||
| Nombre | Especificación | |
| Partes principales | Piso de molde SMC | 1400x1800 mm |
| Paredes de molde SMC | H = 2000/2200 mm | |
| Techo de molde SMC | 1400x1800 mm | |
| puerta | 700x2000 mm | |
| desagüe | ||
| Washing | Cuenca del molde SMC | L = 1000 mm |
| grifo de la cuenca | Mango único para un solo agujeros | |
| espejo | 500x700 mm | |
| riel de toalla | L = 400 mm, abdominales | |
| stand de jabón | Abdominales | |
| WC | baño | prensa superior |
| portavoz | Abdominales | |
| Ducha | grifo de ducha | agujeros de doble manija |
| estante rectanglular | Abdominales | |
| tira de retención de agua | ||
| riel de toalla de ducha | L = 400 mm, abdominales | |
| cortina de ducha (barra) | L = 1400 mm | |
| Aparato | Luz LED | 4000K |
| ventilador de escape | enjuague de una pieza | |
| enchufe | ||
| Piezas de instalación | Arreglar conjuntos de cuadros | |
| tuberías de suministro de agua | longitud 150 mm más alta que la pared del baño | |
| tuberías de aguas residuales | ||
| sellador | ||